EFDB
描述
技术说明
用途:双筒管路过滤器
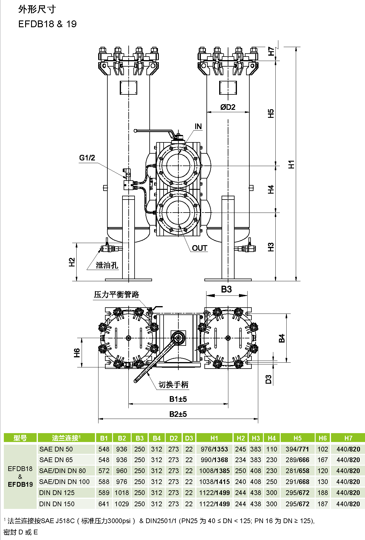
接口尺寸:SAE DN40 & SAE DN50 & SAE DN65 3000 psi SAE/DIN DN 80 & SAE/DIN DN 100 & DIN DN 125 DIN DN150 &DIN DN200 &DIN DN250
流量:至15000 l/min
工作压力:最大16bar最大25 bar (仅SAE/DINDN80&SAE/DINDN100 )
爆破压力:75 bar
滤芯压差:10bar(滤纸)21bar(玻璃纤维)30bar(金属网)
旁通阀开启压力:ΔP = 3 bar ±10%
指示器设定压力:ΔP = 2 bar ±10%
密封:丁腈橡胶或氟橡胶(-10°C至100°C)
材料:铁
与介质相容性:适用于矿物油、润滑油、抗燃油和可快速生物分解的介质.(若用于含水介质,请咨询我们的技术部。)
测试标准:
ISO2941 抗破裂性检验
ISO2942滤芯结构完整性试验
ISO2943材料与液体相容性检验
ISO3723滤芯额定轴向载荷检验
ISO3724液压滤芯流动疲劳特性的验证
ISO3968压降流量特性的评定
ISO16889评价滤芯过滤性能的多次通过法
关于产品的问题?
其他信息
| 表1 | 16, 17, 18, 19, 20, 21, 22, 23, 24, 25, 26, 27, 28, 29 |
|---|---|
| 表2 | FE, FF, FG, EH, EI, DJ, DK, DL, DM |
| 表3 | B, V |
| 表4 | 00, 08 |
| 表5 | P10, P20, M03, M05, M10, M20, Y25, Y60, Y90, Y125 |
| 表6 | 00, 2PE, 2PB |
您需要在 登录后发表评论。.











评论
目前还末有评论